|
||||||
| 住所 | 敷金 礼金 |
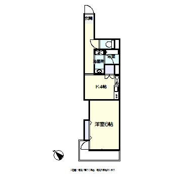
間取り 面積 |
タイプ 構造 |
入居時期 | 築年月 | 駐車場 |
|---|---|---|---|---|---|---|
| 世田谷区南烏山6丁目 | 2ヶ月 0ヶ月 |
1K 39.6m2 |
マンション 鉄筋コンクリート造 |
即時 | 2003/03 | 無 |
★新規入居者は年齢30歳代までの方が対象となります。
★バストイレ別
★ガスキッチンでほとんどのお料理には対応できます
★コイン駐車場がすぐ横にありとても便利です
★収納もウォークインクローゼットがあります。
★エレベータで楽々です
★オートロック、インターホンでセキュリティーもOK!
★CATVももちろん完備
★バルコニーで洗濯物を干すことも可能です。
★追焚バス
★更新料無し但し、更新事務手数料20,000円(税別)必要となります。
★自転車駐輪場が使えます。入居者は駅前自転車駐輪場が無料で使えるということになります。
★築年数半分以下のイメージで十分OKなほど管理状況がいいマンションです。自信アリます
| 担当者 | ここが○ |
![]() |
駅からのアクセスの良さだけでなく、建物の施工や管理の良さを見て感じて頂きたいと思います。 |
| 村田’s チェックポイント |
ここが× |
| ★駅からのアクセスが良すぎる為、周辺の環境が気になる方もいらっしゃいます。窓を閉めれば駅からの音は聞こえません。 |
★SUMO掲載物件です。
| 物件番号 | 2067 | ||
|---|---|---|---|
| 交通 | 京王線 千歳烏山 徒歩1分 | バス停最寄施設 | |
| 向き | 南西 | 階/階建 | 3階/3階建 |
| 保証金 | 敷引 | 0ヶ月 | |
| 契約期間 | 2年 | 取引態様 | 専任媒介 |
| 間取詳細 | (3階)洋6 | 火災保険 | 要加入 |
| 特色 | バストイレ別、追焚バス、室内洗濯機置場、独立洗面台、ガスキッチン、洋室、エレベータ、二階以上、WIクローゼット、CATV、インターネット対応、エアコン、バルコニー、オートロック、自転車駐輪場、更新料無し | ||
※掲載されている物件データが現状と異なる場合は現状を優先します
地図
|
|
位置情報に関するご注意:現在位置情報は精査中の為、正確ではない場合があります。あくまで参考程度の情報となります。
![]()
- ヤマケイプレコン株式会社 烏山支店
- TEL:03-3309-2611
- FAX:03-3309-2622



























